WFLI RADIO STATION
The Top 40 Radio Hall of Fame is a local museum and educational center that documents, preserves, and honors the disc jockeys and radio stations that shaped the history of American Top 40 radio from the 1960s to the 1980s. Similar to how magic draws the viewer in, radio show hosts do the same with their voices. You are unable to see what they look like, but you are entranced by the illusions of sounds that they create. Music encompasses the feeling of magic and is a sensual refreshment that in-captivates us. Working alongside Claire Adcox, this redesign will incorporate these feelings into each space that you enter, allowing you be immersed in an experience through interactive displays and a magical aesthetic.
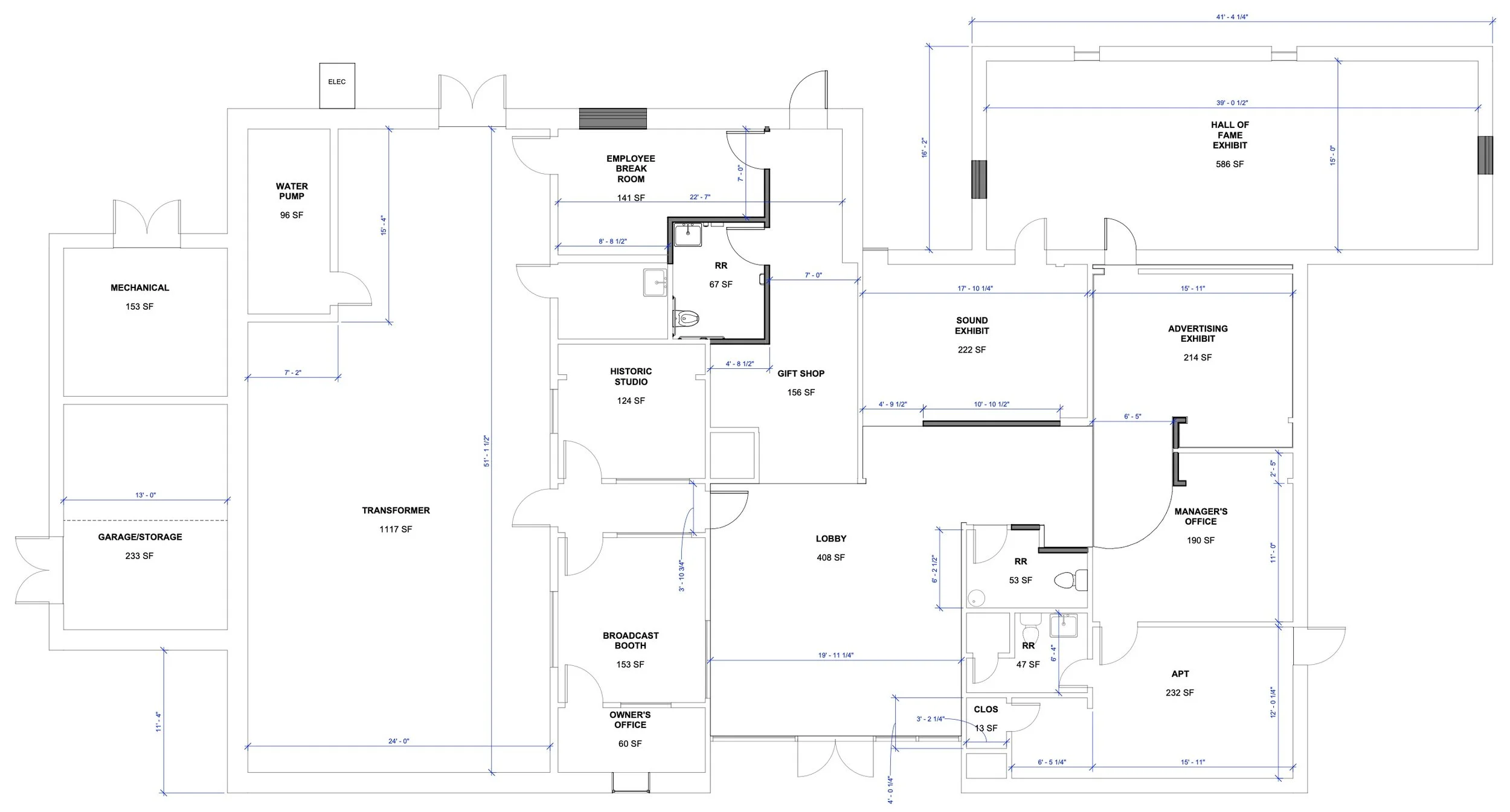
Lobby
Advertising Exhibit
Hall of Fame Exhibit
Sound Room Exhibit
Demolition Floor Plan
Final Floor Plan